À vendre
Maison avec beau potentiel
Rue Van Cutsem, 60
5190 - Jemeppe-sur-sambre

JEMEPPE-SUR-SAMBRE - Rue Van Cutsem, 60
Vaste maison 4 façades dans un quartier calme sur un terrain
de 9 ares 58 au croisement
de deux rues.
Cette maison se compose d'un hall d'entrée, un vestiaire avec wc, un séjour avec
feu-ouvert avec une salle à manger en enfilade et une cuisine donnant sur une terrasse
couverte et le jardin. Le premier étage comprend un vaste hall de nuit, 4 chambres et une
salle de bains avec wc. Au grenier, deux chambres ont été aménagées avec encore
des
espaces disponibles.
Il y a des caves et une citerne d'eau en sous-sol. Longeant la mitoyenneté, il y a un garage
avec une remise.
Très belle opportunité pour ceux qui cherche une habitation de grande taille à mettre à
leur goût.
Rez-de-chaussée
Hall d'entrée 2,0m x 6,0m = 12,0m²
Vestiaire 1,1m x 1,8m = 2,0m²
WC ,7m x 1,7m = 1,2m²
Living 4,7m x 8,0m = 30,0m²
Salle à manger 3,5m x 4,0m = 13,9m²
Cuisine 3,3m x 3,8m = 12,5m²
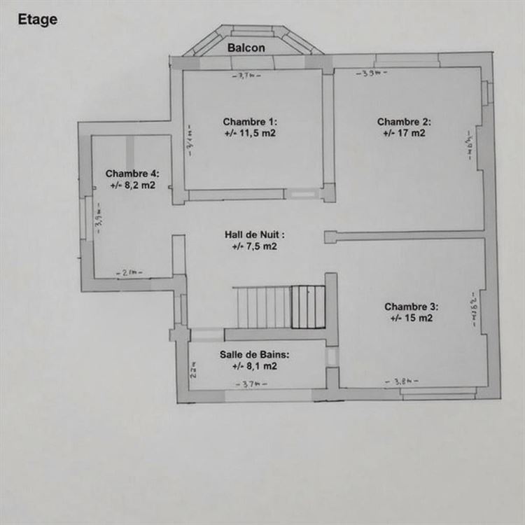
Premier étage
Hall de nuit 2,0m x 3,7m = 7,4m²
Chambre 1 3,1m x 3,7m = 11,5m²
Chambre 2 3,9m x 4,4m = 17,2m²
Chambre 3 3,8m x 4,0m = 15,1m²
Chambre 4 2,1m x 3,9m = 8,2m²
Salle de bains 2,2m x 3,7m = 8,1m²
Deuxième étage
Chambre 5 4,0m x 3,8m = 13,8m²
Chambre 6 3,8m x 4,2m = 16,0m²
Grenier 2,0m x 3,9m = 7,8m²
Grenier 2,2m x 3,8m = 8,4m²
Grenier 4,0m x 4,4m = 16,0m²
Couloir Superficie: 8,0m²
Caractéristiques
- DisponibilitéA l'acte
- Revenu cadatral1065 €
- Surface totale168m2
Salon : 30m2
- ConditionA renover
- Espec435 kWh/m2/an
- Etotale105532 kWh/an
- Chambres6
- CuisineArmoires et appareils
- Salles de bain1
- Année de construction1910
- ChauffageIndividuel - C.C. au mazout
- VitresSimple
- OrientationSud-ouest
- Garage1
- Cave
- Grenier
- Jardin
- Code unique PEB20250929037543
Localisation
Amateurs d'art et de bonnes affaires, découvrez notre salle de ventes


























